Modernes Haus mit Swimmingpool in ruhiger Lage in Novigrad
- Kode : 00721
- Standort : Novigrad
- Wohnfläche : 100 m2
- Grundstücksgröße : 240 m2
- Entfernung zum Zentrum : 2700 m
- Entfernung zum Meer : 2700 m
499.000 €
MERKMALE
- Etagenzahl : 1
- Anzahl Schlafzimmer : 3
- Anzahl Zimmer : 5
- Anzahl Badezimmer : 2
- Energieeffizienz : A
- Baujahr : 2026
- Zustand : Neubau
STANDORT
- Attraktiver Standort
- Arrangiert Umwelt
- Schwimmbad
- Installierte Wasser
- Installierte elektrische Energie
- Kanalisation
- Asphaltiert
AUSRÜSTUNG
- Parkplatz
- Klimaanlage
- Fußbodenheizung
- Terrasse
- Sicherheitstür
- Internet
- PVC-Türen und -Fenster
BESCHREIBUNG
Modernes Haus mit Pool in ruhiger Lage in Novigrad
Modernes Haus mit Pool in ruhiger Lage in Novigrad zu verkaufen
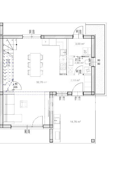
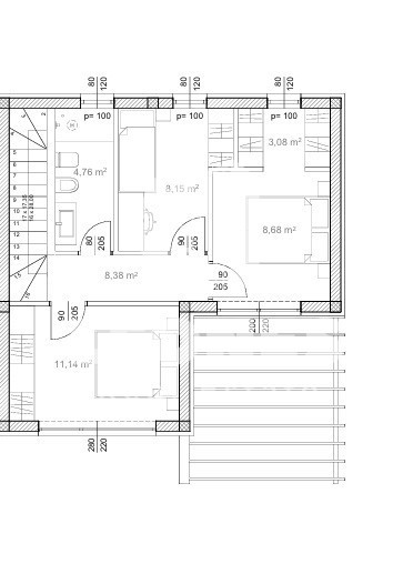
Dieses moderne Reihenendhaus besteht im Erdgeschoss aus einem geräumigen, offenen Wohnzimmer mit Küche und Esszimmer, Bad und Waschküche. Im Obergeschoss befinden sich drei Schlafzimmer und ein Badezimmer.
Die Heizung erfolgt über eine 12-V-Fußbodenheizung (Vorbereitung für den Einbau einer Wärmepumpe möglich), die Kühlung über Klimaanlagen.
Das Haus ist mit hochwertigen Materialien ausgestattet, die Fassade ist energieeffizient (10 cm) und die Fenster und Türen bestehen aus PVC.
Das Haus wird mit 25 cm starken Porotherm-Ziegeln gebaut.
Der 240 m² große Garten bietet eine Liegewiese, einen Pool und eine Rasenfläche.
Voraussichtliche Fertigstellung ist der 07/26
Zum Haus gehören zwei Parkplätze.
www.leones-realestate.hr
Sehr geehrte Kunden, die Maklerprovision beträgt laut Geschäftsbedingungen 3 % + MwSt. (25 %), insgesamt 3,75 % des Kaufpreises.
Die Immobilie kann nur mit einem unterzeichneten Maklervertrag besichtigt werden, der die Grundlage für weitere Maßnahmen im Zusammenhang mit dem Verkauf und der Provision bildet, alles in Übereinstimmung mit dem Gesetz über Maklergeschäfte bei Immobilientransaktionen.
Alle Daten auf diesen Websites werden nur zu Informationszwecken präsentiert, vor jeder Schlussfolgerung oder Aktivität, die auf Daten von diesen Seiten basiert, müssen alle Informationen in unserer Agentur überprüft werden.
KONTAKTIEREN SIE DIE MAKLER
Ivana Kantura
ivana@leones-realestate.hr
+385 99 298 8156
