Building land with building permit in the first row to the sea near Umag
- Code : 00665
- Location : Umag
- Lot size : 2390 m2
- Distance from center : 0 m
- Distance from sea : 30 m
890.000 €
FEATURES
LOCATION
- Seaview
- Attractive location
- Arranged environment
- Swimming pool
- Conducted water
- Conducted current
- Sewerage
- Asphalted
- Finished project
- Utilities paid
DESCRIPTION
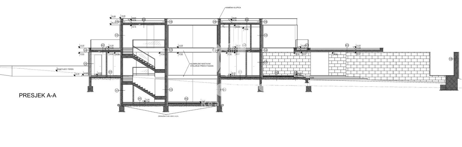
Building land with building permit in the first row to the sea - Umag area
Building land for sale with building permit in the first row to the sea - Umag area. The land area is 2390 m2 and a villa with a swimming pool is planned on three floors - basement, ground floor and first floor. The total net area of the villa is 475 m2 while the pool area is 52 m2.
www.leones-realestate.hr
Dear customers, according to the terms of business, the brokerage commission is 3% + VAT (25%), a total of 3.75% of the purchase price.
The property can be viewed only with a signed Brokerage Agreement, which is the basis for further actions related to the sale and commission, all in accordance with the Law on Brokerage in Real Estate Transactions.
All data on these websites are presented for information purposes only, before any conclusion or activity based on data from these pages, all information must be checked in our agency.
CONTACT THE AGENT
Igor Knapić
info@leones-realestate.hr
+385 99 284 2871
