Zemljište s građevinskom dozvolom za kuću s bazenom u okolici Višnjana
- Šifra : 00809
- Lokacija : Višnjan
- Površina parcele : 923 m2
- Udaljenost od centra : 5000 m
- Udaljenost od mora : 110000 m
165.000 €
ZNAČAJKE
LOKACIJA
- Atraktivna lokacija
- Uređen okoliš
- Bazen
- Sprovedena voda
- Sprovedena struja
- Gotov projekt
- Izgradivost
OPIS
Zemljište s građevinskom dozvolom za kuću s bazenom u okolici Višnjana
Prodaje se zemljište s građevinskom dozvolom za kuću s bazenom u okolici Višnjana
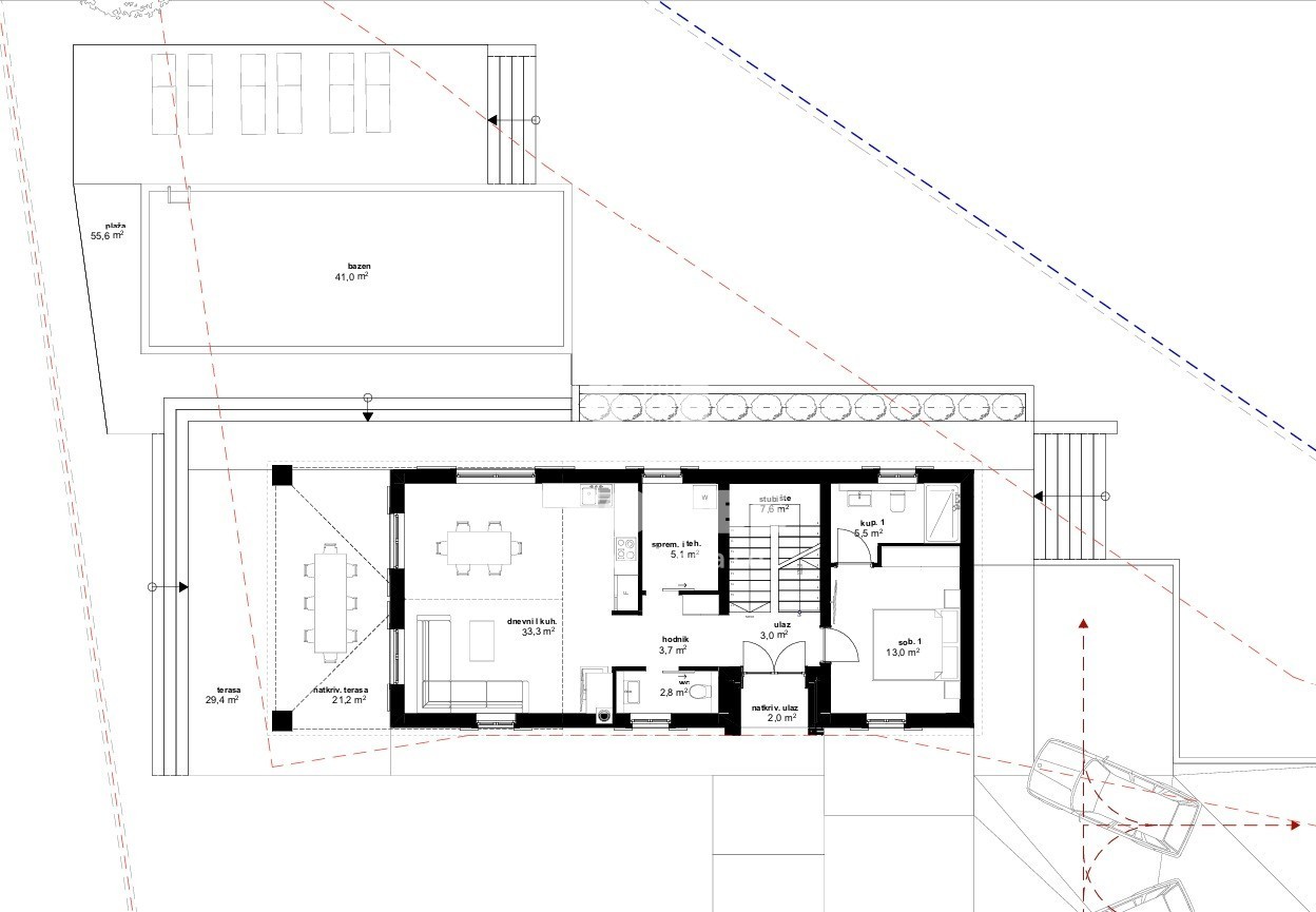
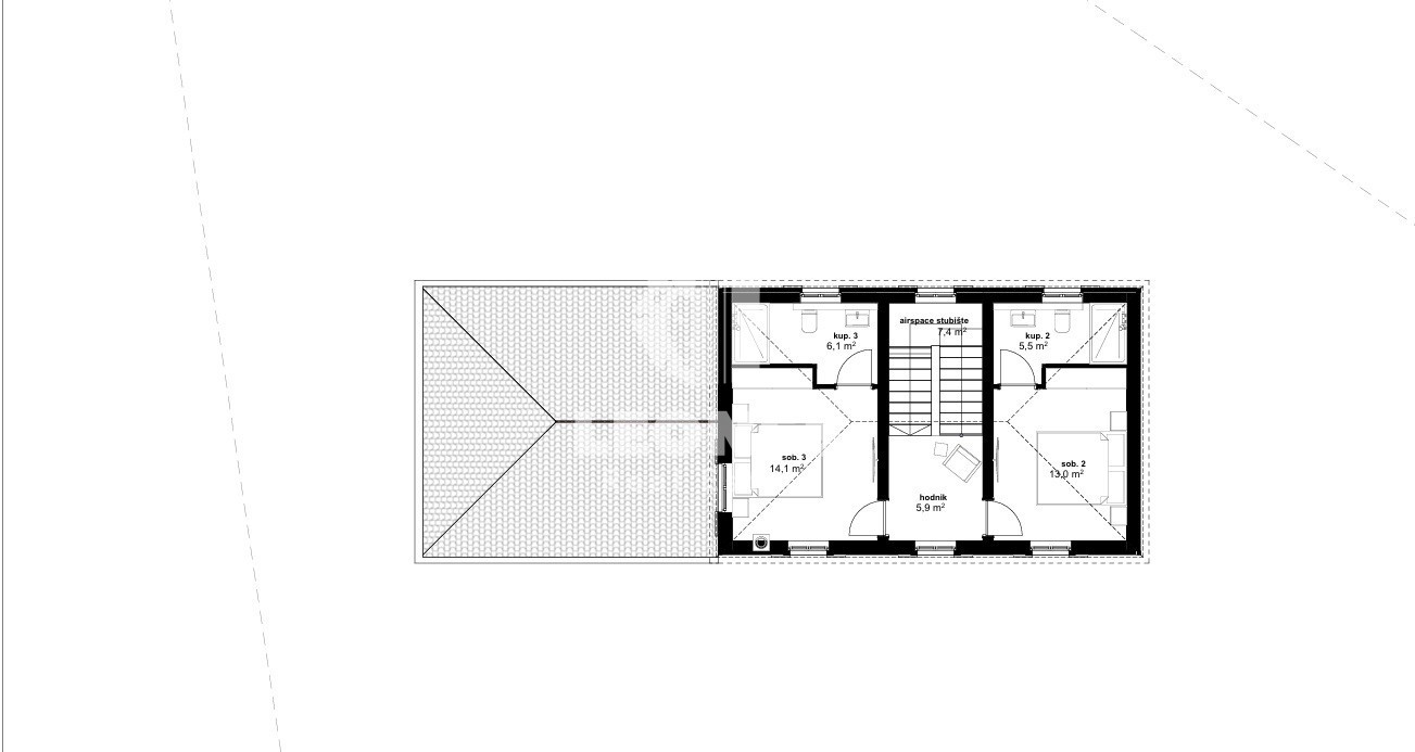
Ovo zemljište ima ishođenu građevinsku dozvolu za kuću s bazenom i nalazi se na izrazito mirnoj lokaciji.
Kuća ima neto zatvoreni prostor od 135,5m2 , natkrivenu terasu u prizemlju od 19,6m2 i bazen od 40m2.
Za više pitanja i razgled lokacije, slobodno nas kontaktirajte!
www.leones-realestate.hr
Poštovani kupci, posrednička provizija prema uvjetima poslovanja iznosi 3% + PDV (25%), sveukupno 3,75% od kupoprodajne cijene.
Nekretninu je moguće razgledati isključivo uz potpisani Ugovor o posredovanju koji je temelj za daljnje radnje vezane uz kupoprodaju i naplatu provizije, a sve sukladno Zakonu o posredovanju u prometu nekretnina.
Svi podaci na ovim stranicama dani su informativnog karaktera, prije bilo kakvih zaključaka ili aktivnosti temeljenih na podacima s ovih stranica, sve podatke potrebno je provjeriti u našoj agenciji.
KONTAKTIRAJTE AGENTA
Ivana Kantura
ivana@leones-realestate.hr
+385 99 298 8156
